















Comision 0% Oferim spre vânzare casă tip duplex P+E situat într-un ansamblu de 4 duplexuri în Florești zona Tăuți cu finalizare decembrie 2025.
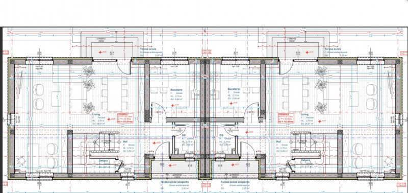
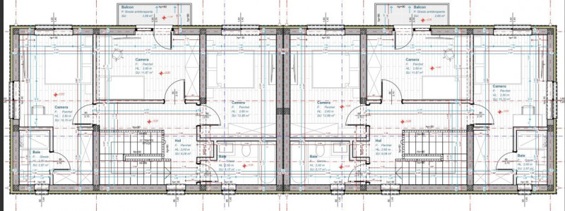
Parterul este compus din living cu loc de luat masa, 1 bucătărie seprată, 1 baie iar etajul este compus din 3 camere, 1 baie, 1 hol și un balcon.
Casa dispune de o suprafață utilă de 118 mp, teren aferent 171 mp și cotă parte aflată în pădure pentru zonă de recreere de 1909 mp.
Se predă semifinisată cu geamuri termopan, usă metal, încălzire în pardoseală la parter și etaj, centrală termică individuală, pereții gletuiți, instalații pe poziții iar curtea exterioară amenajată.
Preț 189000 euro+TVA.